Regina House

Private Residential

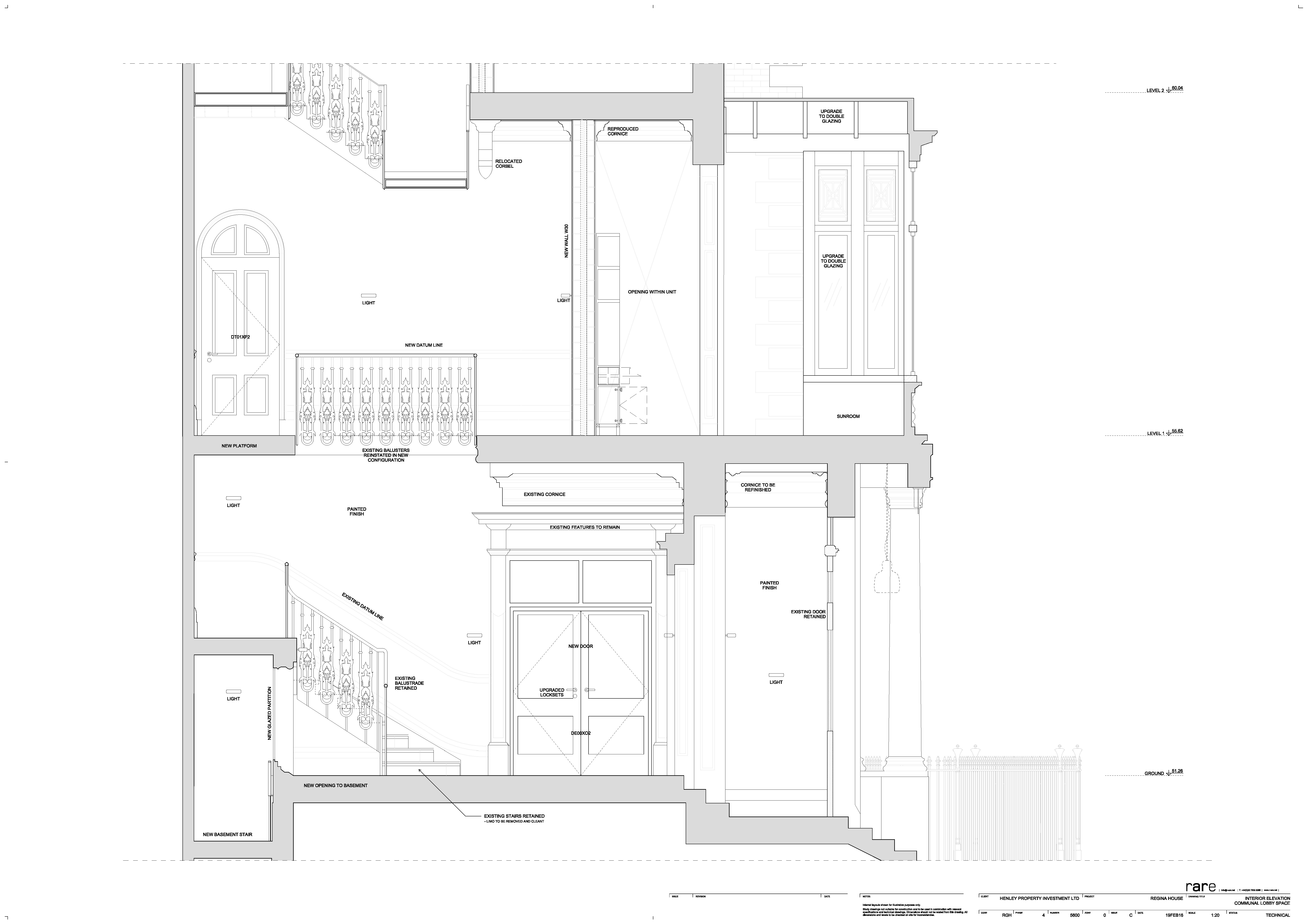
Regina House is a comprehensive refurbishment and restructuring of a historic residential building in London. The project enhances the existing fabric through precise rear‑extension realignment, improved layouts, rationalised circulation, and optimised dual‑aspect units. Architectural adjustments—reconfigured rooflights, refined openings, and upgraded terraces—bring new coherence while respecting the original character. The scheme transforms a heritage structure into contemporary, high‑quality urban living.